-ОТ СОБСТВЕННИКА БЕЗ КОМИССИИ.
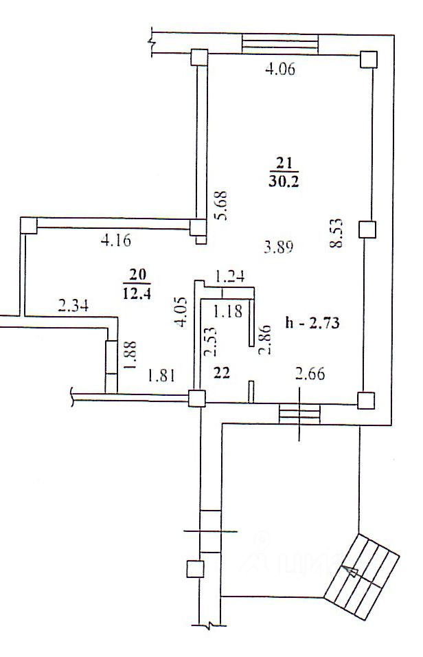
Сдается помещение в центре города, ул. Провиантская 10. Помещение свободного назначения 45 кв.м. на 1-м этаже, отдельный вход, санузел, первая линия у дороги. Помещение находится не далеко от ТЦ Модный Квартал и ТЦ Яркомолл. Электричество и вода считается отдельно, по счетчикам.















