4-к, 5-й квартал, 1 Показать на карте
Шелехов
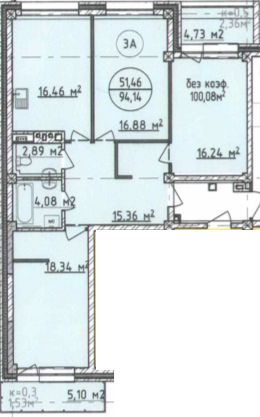
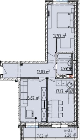
Продаётся 4-комнатная квартира в сданном доме (Блок-секция 4 (дом 1)), срок сдачи: IV-кв. 2019, общей площадью 220 кв.м., на 2 этаже. Расположение, транспортная доступность ЖК ''V квартал'' строится в центре города Шелехов Иркутской области. Это развитый, благоустроенный город, расположенный всего в 11 км от Иркутска, но при этом лишенный всех минусов мегаполиса. Сочетание неторопливого ритма жизни, чистого воздуха и городского комфорта делает его отличным местом для жизни. Расположение жилого комплекса оценят и те, кто предпочитает жить в пригороде и работать в мегаполисе. У ''V квартала'' отличная транспортная доступность. На машине можно добраться до Иркутска всего за двенадцать минут (до исторического центра - менее чем за полчаса). Не возникнет проблем с мобильностью и у пассажиров общественного транспорта: в десяти минутах ходьбы от ЖК расположена автостанция ''Шелехов'', от которой каждые пять-семь минут отправляются автобусы до Иркутска (дорога до центра занимает около получаса). Инфраструктура Жилой комплекс расположен в развитом районе, и все необходимое для комфортного проживания в городской среде находится совсем рядом. В шаговой доступности от ''V квартала'' работают магазины и супермаркеты. Ближайшие - продуктовый магазин ''Сибирь'', торговый центр ''Былина'', ТРЦ ''Квартал 38'', магазины ''Мясной'', ''Молочный'', ''Хлеб-Соль''. В нескольких минутах ходьбы расположены магазин электроники и бытовой техники ''Эльдорадо'', мебельный, магазин парфюмерии и косметики. За десять минут можно дойти до торгового центра ''Шелехов'' и магазина хозяйственных товаров и бытовой химии ''Промтовары-Сибирь''. В непосредственной близости от ЖК открыты отделения банков, почта, аптеки, поликлиники для взрослых и детей, стоматология, оздоровительный центр с тренажерным залом, ветеринарная клиника, салоны красоты и парикмахерские. В паре минут ходьбы - кафе ''Крошка Енот'', караоке-клуб, кофейня My Coffee, бар ''Огонек''. Рядом с ЖК ''V квартал'' находятся кинотеатр ''Юность'' и дом культуры ''Металлург'', в котором проводятся концерты и развлекательные мероприятия, а также работают кружки и творческие студии для всех возрастных групп. За пятнадцать минут можно дойти (или за пять минут доехать) до бассейна ''Лазурный'' и лыжной базы ''Строитель'', которая расположена в большом городском парке. В шаговой доступности от жилого комплекса есть много детских садиков - ''Тополек'', ''Подснежник'', ''Аленка'', ''Аленький цветочек'' и др. Рядом с новым ЖК расположены школа 5, гимназия, Шелеховский лицей. Надежность застройщика Строительство ''V квартала'' ведет ПСК ''СтрйГрад''. Это местная компания, основанная в 2008 году и успевшая зарекомендовать себя как ответственного и надежного девелопера. ООО ''СтройГрад'' занимается масштабными проектами, цель которых - обеспечить людей доступным жильем, которое прослужит долгие годы, а также создать комфортную среду для жизни. Девиз компании: ''Мы строим на века!''. ''СтрйГрад'' возводит дома только из высококачественных материалов, сочетая лучшие традиции градос
220 м2
2 / 6 этаж
Кирпич
- Показать контакты
- Добавить в избранное
220 м2
2 / 6 этаж
Кирпич
19 070 000
86 682 /м2
Новостройка,
дом сдан
дом сдан
