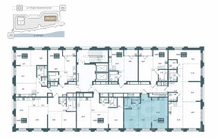
2-к, 1 Линия, 8 Показать на карте
Иркутск
Удобное месторасположение, близость к центру города, 15 минут на любом транспорте. Насыщенность всеми современными локациями для спорта, отдыха и счастливого детства, зеленые зоны. Большие дворы без машин. Большое разнообразие планировок. Эстетика и красота домов и подъездов. Безбарьерная среда всех категорий жителей: пожилых людей, маломобильных групп и детей.Проживание в ''Авиаторе'' сделает жизнь удобнее, интереснее, красочней, выведет ее на новый, более качественный уровень.
67 м2
7 / 16 этаж
Монолит
- Показать контакты
- Добавить в избранное
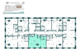
67 м2
7 / 16 этаж
Монолит
10 379 600
154 000 /м2
