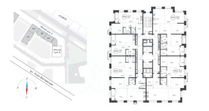
1-к, Пискунова, 148 Показать на карте
Иркутск
ПРОДАЁТСЯ СТИЛЬНАЯ 1-КОМНАТНАЯ КВАРТИРА НА 14 ЭТАЖЕ С ВИДОМ НА ГОРОД!АДРЕС: ЖК с развитой инфраструктурой, 14/15 этажПЛОЩАДЬ: 25 кв.м.О КВАРТИРЕ:• Современный ремонт — готова к проживанию сразу после покупки• Вся мебель и техника могут остаться новому владельцу• Высокий этаж с панорамным видом и отличной инсоляцией• Идеальное состояние — не требует вложенийПРАВОВОЙ СТАТУС: Единственный собственник — взрослый дееспособный гражданин Полная стоимость указывается в договоре купли-продажи Отсутствуют обременения, аресты и ограничения Чистая история собственностиРАЗВИТАЯ ИНФРАСТРУКТУРА РАЙОНА: Школа 23 и детский сад 136 в шаговой доступности Медико-санитарная часть 2 рядом Центры активного отдыха: вейк-парк Wakeplaza, федерация виндсерфинга, зоопарк Магазины Хлеб соль, Фасоль и дискаунтеры у домаНАШИ ГАРАНТИИ: Полная юридическая проверка документов Сопровождение сделки до государственной регистрации и передачи ключей новому владельцу Прозрачные расчеты и защита интересов покупателяНе упустите возможность приобрести квартиру вашей мечты в лучшем районе Иркутска!Звоните для просмотра и консультации — ответим на все вопросы и организуем показ квартиры!Ваша безопасность и чистота сделки — наш главный приоритет!Номер объекта: #1/537620/20002
25 м2
14 / 15 этаж
Кирпич
- Показать контакты
- Добавить в избранное
25 м2
14 / 15 этаж
Кирпич
5 600 000
224 000 /м2
