Если цена в объявлении изменится, мы сразу сообщим вам об этом на электронную почту.
Нажимая «Подписаться», вы соглашаетесь с правилами.
продам 1-к, Лермонтова, 341/47 780 000 ₽
6 фев
Дата публикации объявления
Обн. 20 апр
Дата обновления объявления
2
Количество просмотров (+ просмотры за сегодня)
156 225 ₽/м²
Чистая продажа
Термин "Чистая продажа" означает, что в квартире никто не прописан или
есть куда выписаться и вывезти вещи. Это лучший вариант для покупателя.
Вероятность срыва сделки минимальна.
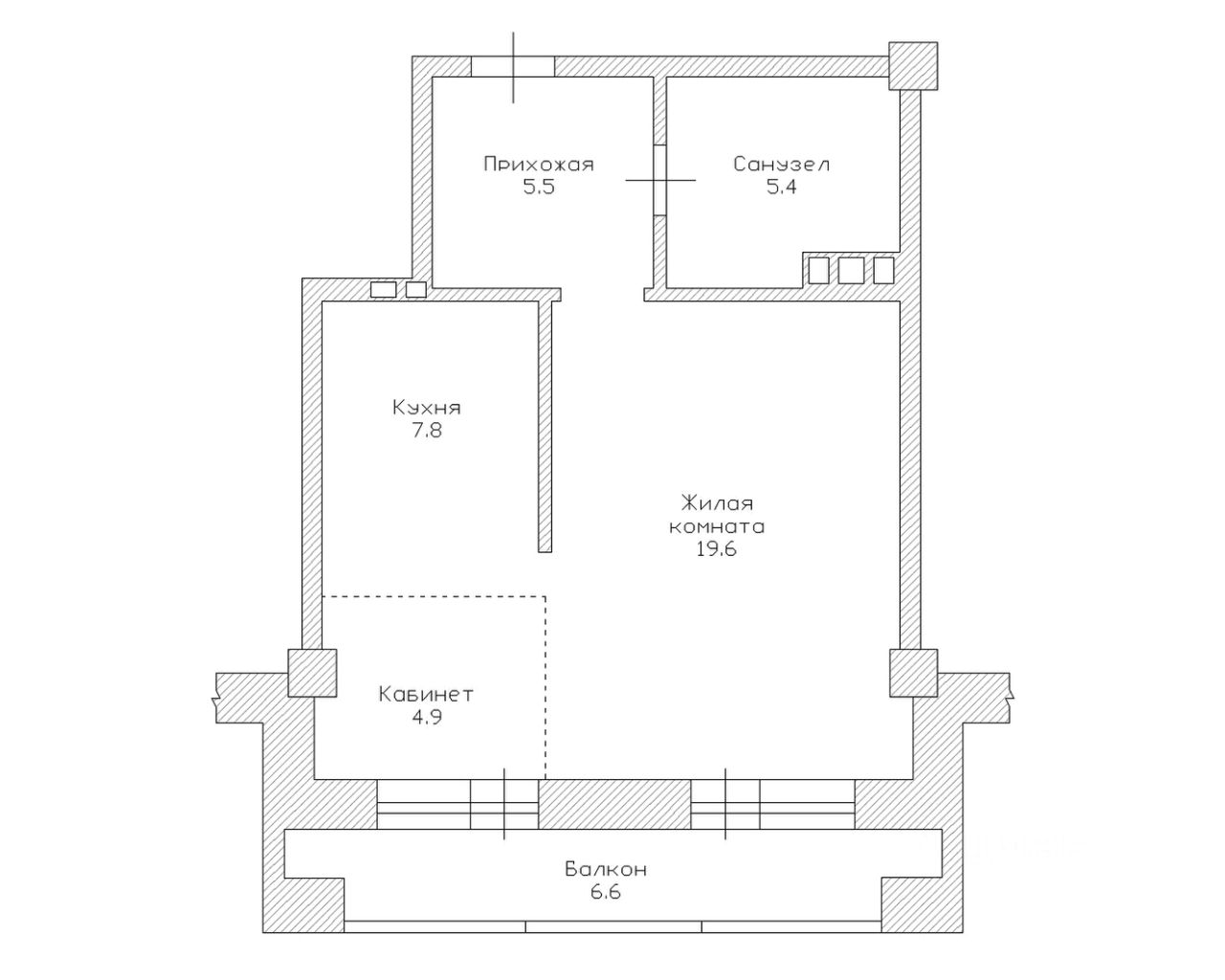
3 этаж 10-этажного монолитно-кирпичного дома 2011 г. постройки (застройщик Лесстрой). Общая площадь 43.2 кв.м, жилая площадь после зонирования 24.5, кухня 7.8, большой совмещенный санузел 5.4, квадратная прихожая 5.5.
Состояние: косметический ремонт, встроенная мебель на кухне, натяжные потолки. Высота потолков 2.61 м. Окна выходят на улицу, солнечная сторона, остекленный балкон 6.6 кв.м с двумя выходами.
Кухонный гарнитур и встроенная техника (плита, духовка, холодильник) остается, как и новая мебель в прихожей. Остальная мебель и техника по договоренности.
Безопасность: чистый подъезд с видеонаблюдением, видеодомофон, в квартире установлена сигнализация. Детская площадка во дворе.
Продается теплая, светлая 1-комнатная квартира.
3 этаж 10-этажного монолитно-кирпичного дома 2011 г. постройки (застройщик Лесстрой). Общая площадь 43.2 кв.м, жилая площадь после зонирования 24.5, кухня 7.8, большой совмещенный санузел 5.4, квадратная прихожая 5.5.
Состояние: косметический ремонт, встроенная мебель на кухне, натяжные потолки. Высота потолков 2.61 м. Окна выходят на улицу, солнечная сторона, остекленный балкон 6.6 кв.м с двумя выходами.
Кухонный гарнитур и встроенная техника (плита, духовка, холодильник) остается, как и новая мебель в прихожей. Остальная мебель и техника по договоренности.
Безопасность: чистый подъезд с видеонаблюдением, видеодомофон, в квартире установлена сигнализация. Детская площадка во дворе.
Парковка: открытая, на территории двора.
Инфраструктура: в шаговой доступности магазины, аптеки, детские сады, школы, профессионалитет, фитнес-клуб 24/7, остановки общественного транспорта.
Квартира без обременений, в собственности более 5 лет. Один собственник.
Цена = 7 780 000 руб. Это объявление от собственника. Торг возможен, обсуждается при личной встрече. Звоните, договоримся о просмотре!