Купи ТРЁШКУ в центре Братска!
3-й мкр, 3-й подъезд, 3-й этаж
даже номер дома - в сумме дает 3))
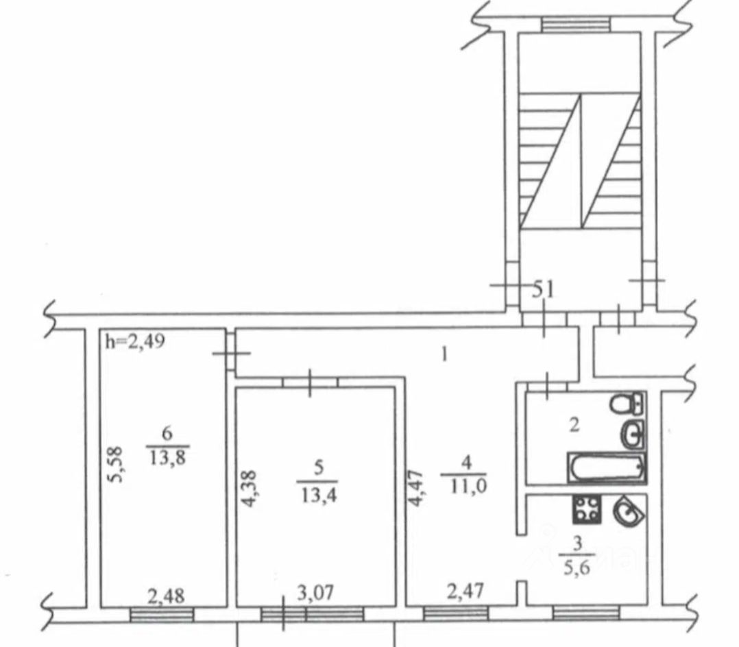
Квартира с дизайнерским ремонтом. Фото перепланировки представлено. Наличие близлежащих объектов инфраструктуры можно посмотреть на картах.
- гарантия чистоты сделки
- продажа от собственника
- узаконенная перепланировка
- без задолженностей и иных ограничений
- уместен разумный торг
Риэлторов и прочих спам-деятелей прошу не беспокоить! Продажа от собственника.
Заинтересованных лиц прошу писать в чат, потому что не всегда могу ответить на звонок. Благодарю за понимание.








