Если цена в объявлении изменится, мы сразу сообщим вам об этом на электронную почту.
Нажимая «Подписаться», вы соглашаетесь с правилами.
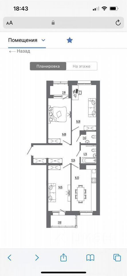
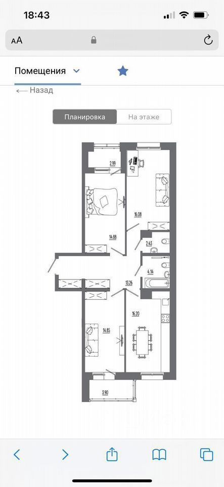
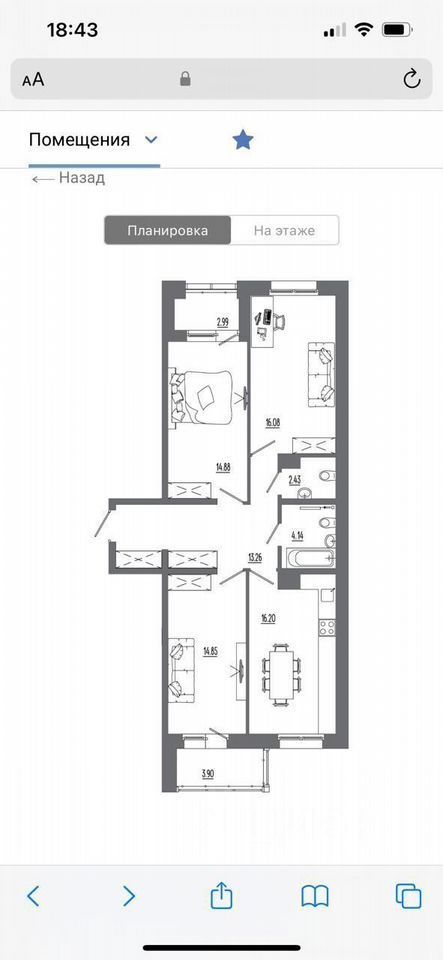
продам 3-к, Ивана Доронина, 7/111 700 000 ₽
22 янв
Дата публикации объявления
Обн. 27 апр
Дата обновления объявления
2
Количество просмотров (+ просмотры за сегодня)
132 203 ₽/м²
Чистая продажа
Термин "Чистая продажа" означает, что в квартире никто не прописан или
есть куда выписаться и вывезти вещи. Это лучший вариант для покупателя.
Вероятность срыва сделки минимальна.
Квартира в черновой отделке, удобный 5 этаж-подойдет для семьи с детьми , хорошая удобная планировка, просторная кухня и три раздельные комнаты , на две стороны, два с/у сделана гидроизоляция, на полу шумоизоляция, хорошая входная дверь, балкон застеклен. Сквозные подъезды, приточная система вентиляции. ЖК Авиатор расположен на пересечении улиц Советская, Пискунова, Ширямова на территории городка ИВАТУ , высокий уровень комфорта, удобное месторасположение, 15 минут до центра города, большие дворы и многофункциональные спортивные пространства оснащенные тренажерами, места для отдыха и зеленые зоны для жителей жилого комплекса, а так же сеть велодорожек. Магазины, аптеки, детские сады, пекарни и кофейни . Много парковочных мест для жителей и гостей.
Квартира в черновой отделке, удобный 5 этаж-подойдет для семьи с детьми , хорошая удобная планировка, просторная кухня и три раздельные комнаты , на две стороны, два с/у сделана гидроизоляция, на полу шумоизоляция, хорошая входная дверь, балкон застеклен. Сквозные подъезды, приточная система вентиляции. ЖК Авиатор расположен на пересечении улиц Советская, Пискунова, Ширямова на территории городка ИВАТУ , высокий уровень комфорта, удобное месторасположение, 15 минут до центра города, большие дворы и многофункциональные спортивные пространства оснащенные тренажерами, места для отдыха и зеленые зоны для жителей жилого комплекса, а так же сеть велодорожек. Магазины, аптеки, детские сады, пекарни и кофейни . Много парковочных мест для жителей и гостей. Два детских сада на 220 мест, один детский сад на 280 мест, строится новая школа.