Жилой комплекс Очаг расположен в Свердловском районе города Иркутск, на пересечении улиц Румянцева, Рылеева и Касьянова.
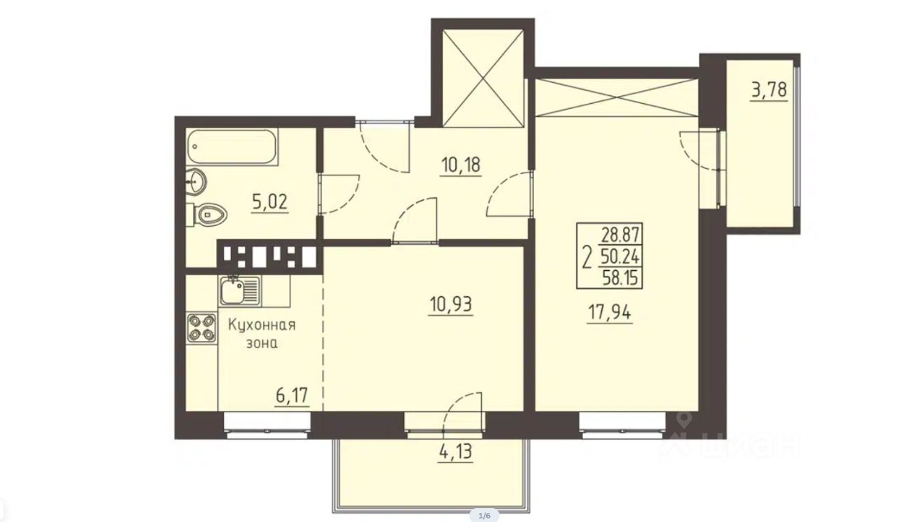
Квартира в черновой отделке, дом сдан, ключи в день сделки.
В домах установлено пожарное оповещение, датчики дыма, видеонаблюдение в лифтах и общедомовом пространстве. На первом этаже расположены колясочные и велосипедные. Во дворе бесплатная зона Wi-Fi.
Удобная транспортная развязка позволяет быстро добраться в любую точку города, расстояние до центра - всего 3 км.
Комплекс располагается в экологически благоприятном районе, недалеко находится реликтовая Кайская роща и парк им. Парижской Коммуны.



