Если цена в объявлении изменится, мы сразу сообщим вам об этом на электронную почту.
Нажимая «Подписаться», вы соглашаетесь с правилами.
продам дом, Виноградная, 348 500 000 ₽
28 сен
Дата публикации объявления
Обн. 14 мар
Дата обновления объявления
8
Количество просмотров (+ просмотры за сегодня)
86 294 ₽/м²
Чистая продажа
Термин "Чистая продажа" означает, что в квартире никто не прописан или
есть куда выписаться и вывезти вещи. Это лучший вариант для покупателя.
Вероятность срыва сделки минимальна.
Этажей2
Площадь участка5,25 соток
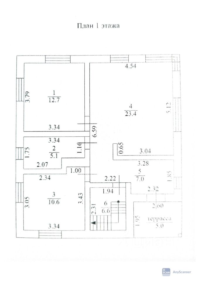
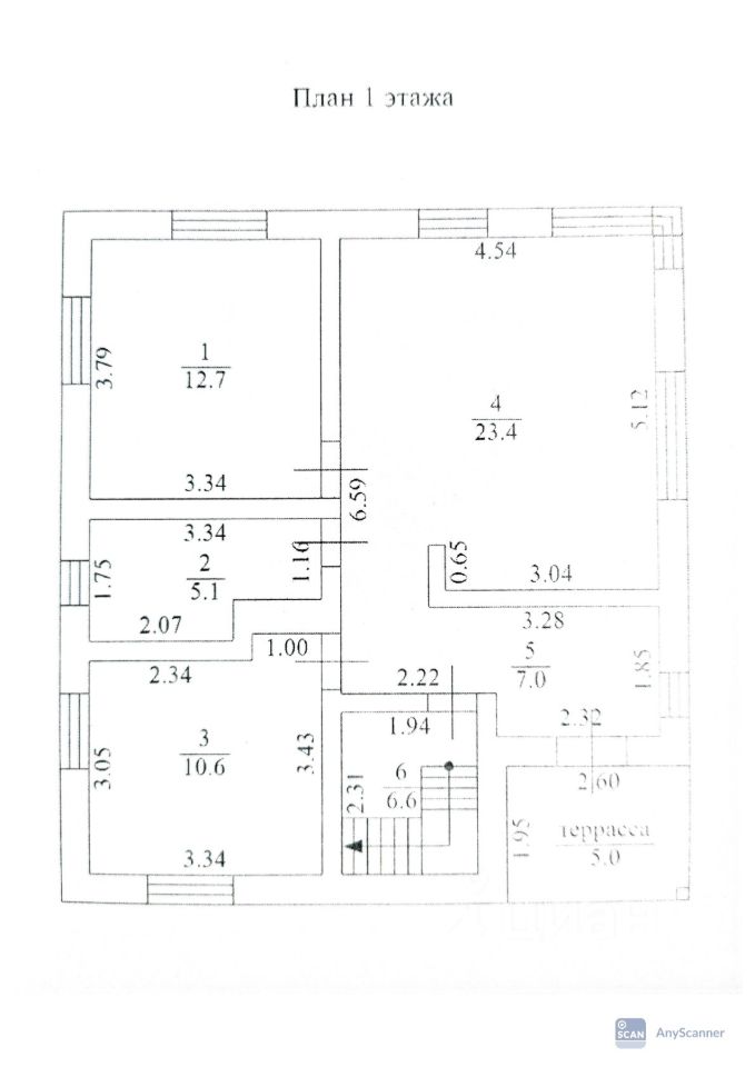
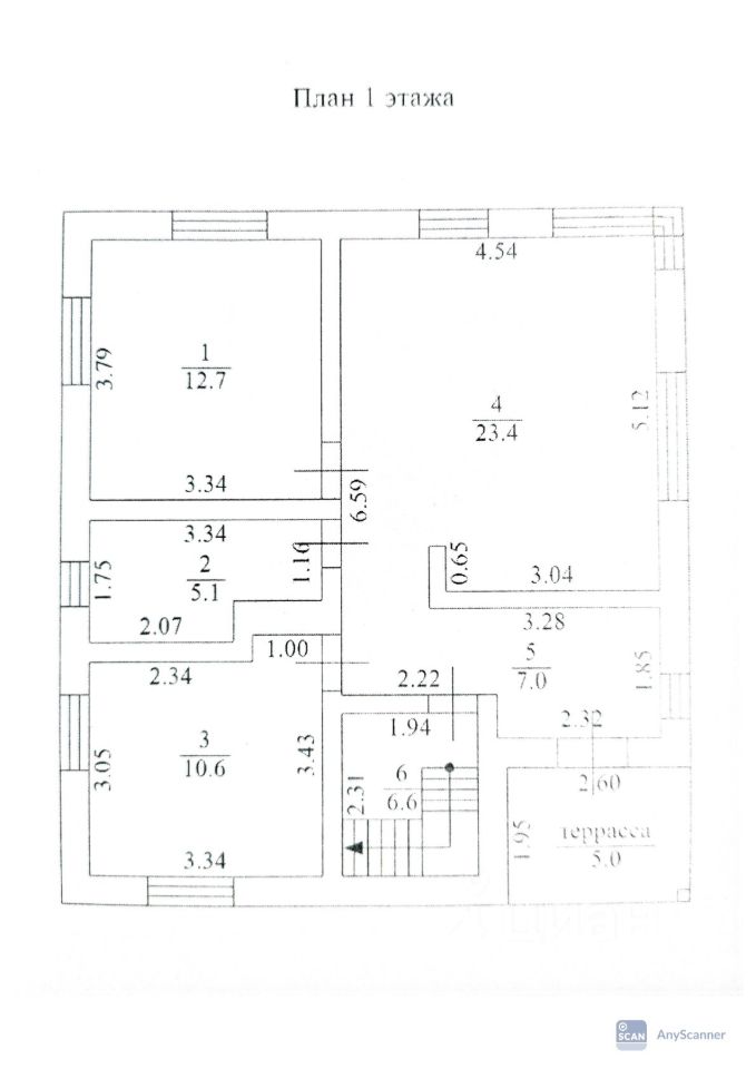
Общая площадь98,5 м2
ЭлектричествоЕсть
Газоснабжениенет
В продаже очень теплый, светлый дом, с хорошей семейной энергетикой! Р.п. Маркова, улица Виноградная, 36.
Дом 2024 года постройки. Газоблоки (400 мм), фасад штукатурка кароед.
*Отопление водяные теплые полы (на Пеноплексе 50 мм и отражающей подложке), с минимальным расстоянием между контурами, площадь прогрева полностью.
*Кровля утеплена (200 мм минплита).
*Окна пятикамерные, панорамные из ПВХ профиля.
*ЦЕНТРАЛЬНАЯ вода, чистая, с хорошим напором.
Септик 6 кубов.
*Свет официальный, 15 кВт., Вся электрика выполнена по ГОСТу. Электрокотел, 9 кВт, водонагреватель на 150 литров. Установлены надежная входная дверь с терморазрывом. Откатные ворота с пульта.
Общая площадь по документам 98,5 кв.м. (70,4 кв.м. по первому этажу - Фактическая , второй этаж -28,1 кв.м., мансардный, есть возможность обустроить, лестницы в доме нет! ).
Полностью благоустроенный, с качественным, современным ремонтом и грамотной планировкой. На первом этаже: большая кухня-студия, две отдельные комнаты, гардеробная (совмещенная с технической комнатой).
Напольное покрытие - керамогранит во всем доме кроме комнат, в комнатах - кварцвиниловая плитка. Санузел полностью керамогранит. Качественная сантехника (система инсталляции, акриловая ванна). Жалюзи скрытого монтажа. Стены покрашены. ЭллектроВытяжки на кухне и в ванной. Точечное освещение во всем доме. Из дополнительного освещения - бра в гостиной и спальне. Розетки на окнах для гирлянд. Проведена проводка под кондиционер и сигнализацию. Уличное видеонаблюдение.
Кухонный гарнитур, изготовленный по индивидуальному проекту со встроенной бытовой техникой ( вытяжка, микроволновая печь, духовой шкаф, посудомоечная машинка, варочная панель). Москитные сетки на всех окнах.
Участок 5,25 сот. (Земли населенных пунктов, Малоэтажная жилая застройка).
Огорожен забором: с трех сторон из проф листа на фундаменте, с одной стороны - доска в хорошем состоянии. Есть место под строительство гаража. Подъезд к дому тупиковый, никакого шума и пыли от проезжающих машин!
Есть возможность предоставить фотографии всех этапов строительства! Один взрослый собственник, материнский капитал не использовался, в ипотеке Сбербанка. Продажа от собственника. Полное юридическое сопровождение сделки. Без комиссий