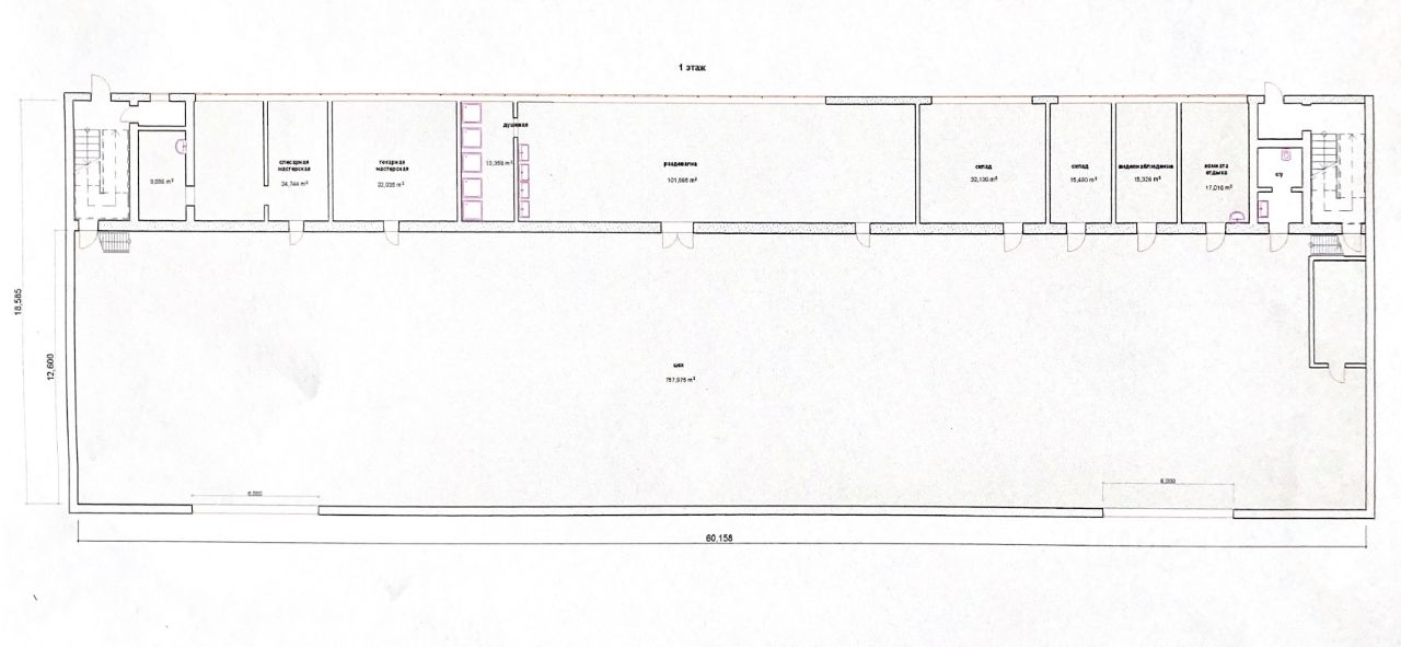
Сдается производственное помещение:1 этаж- цех 750 кв.м, душевые и раздевалка 100 кв.м., кроме этого на этаже расположены -сан.узел, комната отдыха, токарная и слесарная мастерская, комната видеонаблюдения. В цехе есть кран-балка 10 тонн, вальцы, гильотина и другое оборудование.
На 2 этаже расположены 2 сан.узла, кухня и несколько офисных помещений от 12 м.кв.
Въезд на территорию здания за Управлением Пенсионного Фонда. Общая площадь земельного участка 4305 кв.м.













