Если цена в объявлении изменится, мы сразу сообщим вам об этом на электронную почту.
Нажимая «Подписаться», вы соглашаетесь с правилами.
продам 2-к, Гравийная, 22/37 600 000 ₽
30 апр 2025
Дата публикации объявления
Обн. 28 апр
Дата обновления объявления
2
Количество просмотров (+ просмотры за сегодня)
146 154 ₽/м²
Чистая продажа
Термин "Чистая продажа" означает, что в квартире никто не прописан или
есть куда выписаться и вывезти вещи. Это лучший вариант для покупателя.
Вероятность срыва сделки минимальна.
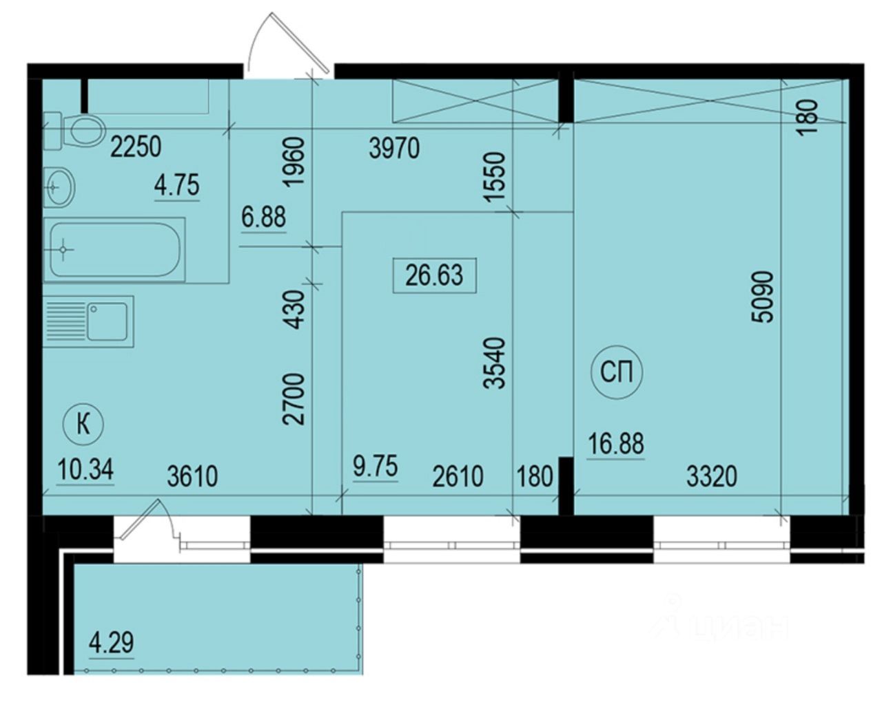
Предлагается вашему вниманию уютная двухкомнатная квартира площадью 48.6 квадратных метров на шестом этаже монолитного дома новой постройки (2023 год) по адресу: город Иркутск, микрорайон Иркутск II, улица Гравийная, дом 22/3.
Это прекрасный вариант как для молодых семей, так и для тех, кто ценит комфорт и качество жизни. Жилая площадь составляет 26 квадратных метров, а кухня радует своими размерами - 10 квадратных метров, что предоставляет отличные возможности для кулинарного творчества и семейных ужинов. Квартира оборудована совмещённым санузлом и имеет один балкон, откуда открывается вид на тихий и зелёный двор.
Важно отметить, что квартира требует ремонта, что даёт новым владельцам уникальную возможность обустроить жильё согласно своим предпочтениям и вкусам.
Предлагается вашему вниманию уютная двухкомнатная квартира площадью 48.6 квадратных метров на шестом этаже монолитного дома новой постройки (2023 год) по адресу: город Иркутск, микрорайон Иркутск II, улица Гравийная, дом 22/3.
Это прекрасный вариант как для молодых семей, так и для тех, кто ценит комфорт и качество жизни. Жилая площадь составляет 26 квадратных метров, а кухня радует своими размерами - 10 квадратных метров, что предоставляет отличные возможности для кулинарного творчества и семейных ужинов. Квартира оборудована совмещённым санузлом и имеет один балкон, откуда открывается вид на тихий и зелёный двор.
Важно отметить, что квартира требует ремонта, что даёт новым владельцам уникальную возможность обустроить жильё согласно своим предпочтениям и вкусам. Это идеальный шанс создать интерьер своей мечты с нуля.
Расположение дома предлагает все необходимые удобства для современной жизни: рядом находятся школа, детский сад, торговый центр и фитнес-клубы. Для маленьких жителей комплекса во дворе оборудованы детская и спортивная площадки. Также стоит отметить, что безопасность жителей обеспечивается системой домофона.
Прилегающая территория включает в себя парковку во дворе, что значительно упрощает вопрос с местом для автомобиля.
Это отличный выбор для тех, кто хочет жить в новом доме с развитой инфраструктурой и наслаждаться спокойствием пригородной жизни с одновременной близостью к городской суете. Приглашаем вас оценить все преимущества этой квартиры лично!